In het Antwerpse Park Spoor Noord draaide het weekend rond urban sports. Bezoekers konden gratis kennismaken met sporten zoals basketbal,...
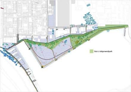
Fase 1 van Galgenweelpark gestart
- login om te reageren
- 4424 keer gelezen
Mensen die deze pagina bekeken vonden dit ook interessant:








Lees meer over 